

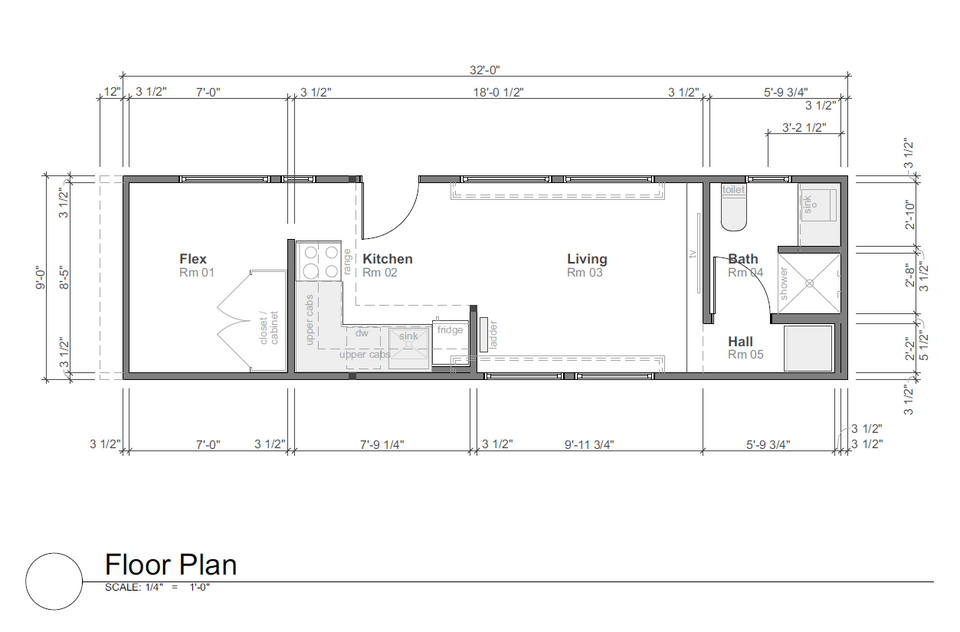
This meticulously crafted tiny home, measuring 9' in width and 32' in length, was custom built by the dedicated 2023/24 Class at Summit High School with the assistance of volunteer tradespeople from the local Summit County community. Designed to withstand snowloads at 7,000' elevation or lower, it offers both durability and modern comfort. Equipped with a full range of stainless steel GE appliances, including a stack washer/dryer unit and a 4-burner ceramic glass cooktop, this all-electric home also features a 200-amp panel and a robust solar system capable of supporting a hot tub and car charging. The interior boasts Aristokraft Cabinetry, quartz countertops, and laminated watersafe flooring, ensuring both style and functionality. Additional highlights include a Mitsubishi Mini Split Heat/AC system, a DreamLine shower, and comprehensive insulation for year-round comfort. This unique tiny home represents a collaborative effort between students and local professionals, resulting in a high-quality, sustainable living space perfect for minimalist and eco-friendly living.























